Вхід на сайт

Ел. пошта:
Пароль:

Реєстрація на сайті

Призвіще: Область:
Ім'я: Населений пункт:
    По батькові: Номер телефону:
    Ел. пошта: Компанія:
      Пароль: Посада:
      Повторіть пароль: Рік початку роботи:
      Фото:
      З правилами розміщення об'єктів погоджуюсь

      Забули пароль?

      Вкажіть ел. пошту — ми надішлемо Вам новий пароль для входу
      Ел. пошта:

      Проблема на сайті

      Закрити
      Ваш e-mail:
      (необов'язково)
      Розкажіть нам, що сталось

      bugaz.jpg

      CPM.gif

      ул. Комсомольская — Здається рекреаційний об'єкт

      (г. Полтава, Октябрьский район)

      15000 грн.

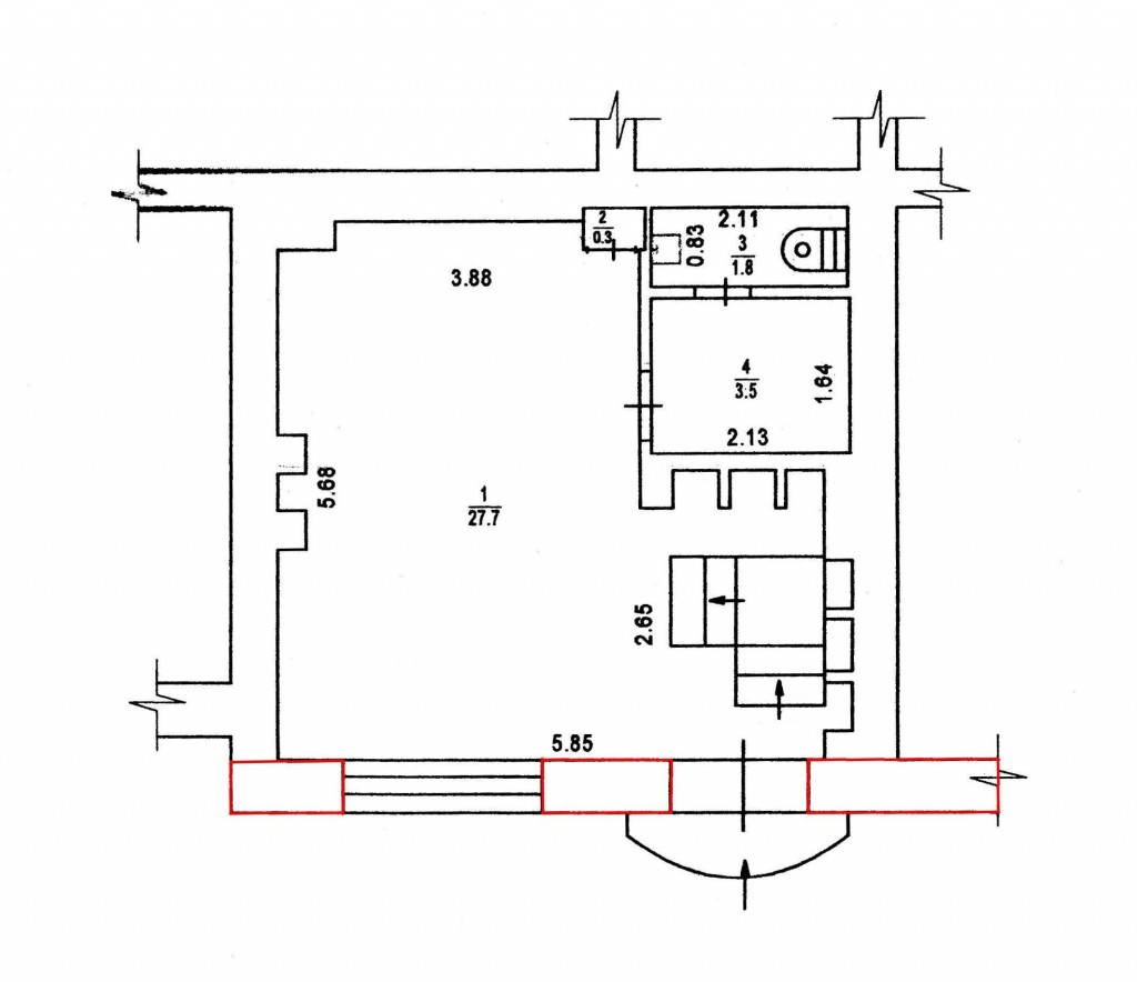
      Загальна площа: 33 кв.м

      К-ть поверхів: 5

      • Оренда приміщення площею 33 м2 в Центрі міста на розі вулиць Небесної Сотні та Стрітенської, на 1-му поверсі з окремим входом з фасаду будинку універсального призначення (для сфери послуг, офіс, торгівельне представництво…)

      Характеристики:
      - 1 поверх, вхід з фасаду будинку, вільне паркування для авто;
      - зал- 27,7 м2;
      - підсобне приміщення- 3,5 м2;
      - санвузол

      Комунікації:
      - опалення автономне (електричне);
      - теплова завіса;
      - кондиціонер
      • Вартість оренди:
      15 000 грн/міс (оплата перший та останній місяць) + комунальні послуги+ послуги агенції нерухомості

      Надіслати скаргу

      Закрити
      Поскаржитися на об'єкт «ул. Комсомольская (г. Полтава, Октябрьский район)»
      Ваш коментар:(Необов'язково)
      Ваша скарга буде надіслана ріелтору, що розмістив об'єкт, а також адміністрації сайту АФНУ.
      Ваше ім'я:
      (Обов'язково)
      Ваш e-mail для відповіді:
      (Обов'язково)

      Коментарі