Вхід на сайт

Ел. пошта:
Пароль:

Реєстрація на сайті

Призвіще: Область:
Ім'я: Населений пункт:
    По батькові: Номер телефону:
    Ел. пошта: Компанія:
      Пароль: Посада:
      Повторіть пароль: Рік початку роботи:
      Фото:
      З правилами розміщення об'єктів погоджуюсь

      Забули пароль?

      Вкажіть ел. пошту — ми надішлемо Вам новий пароль для входу
      Ел. пошта:

      Проблема на сайті

      Закрити
      Ваш e-mail:
      (необов'язково)
      Розкажіть нам, що сталось

      bugaz.jpg

      CPM.gif

      ул. Первомайская — Продається будинок

      (г. Кременчуг)

      11500 $

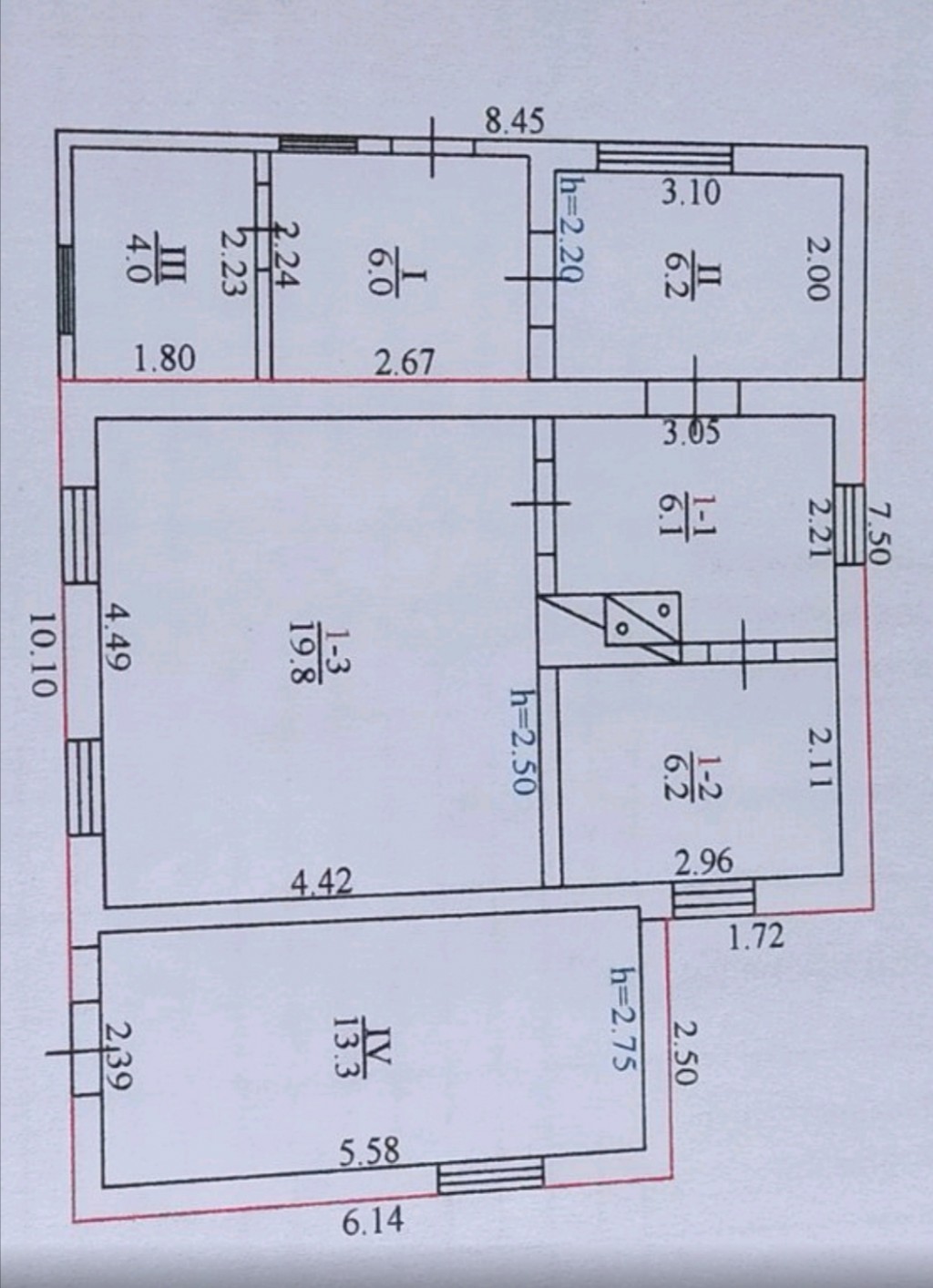
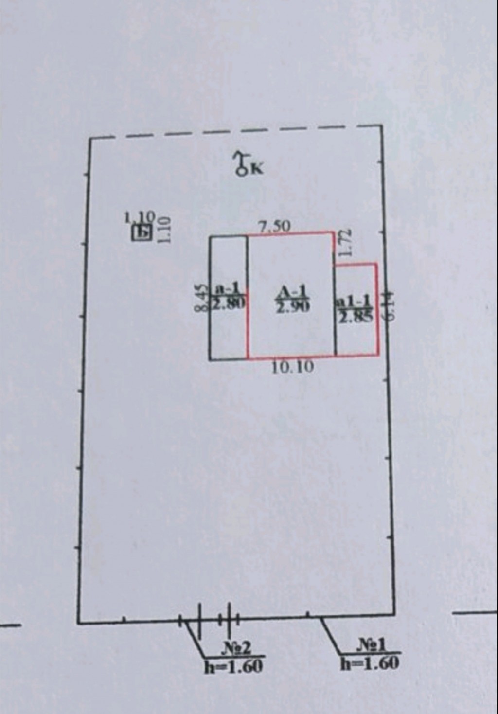
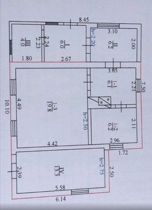
      Загальна площа: 62 кв.м

      Площа ділянки: 12 сот

      Кімнат: 3

      К-ть поверхів: 1

      Продам дом в Чечелево по ул. Первомайская, в трёх минутах остановка 109-й маршрутки и где-то 1 км от остановки 209-й маршрутки, рядом с остановкой находятся магазин, школа. Дом находится в тихом месте, рядом сосновый лес и поле, осенью можно собирать грибы.
      Дом общей площадью 62 кв.м, в доме есть пристройка под санузел, которая узаконена, осталость только завести коммуникации. В плотную к дому пристроен сарай, который можно использовать ещё как одну комнату. Потолки высокие, крыша шифер недавно перекрывали, деревянные брусья новые. Сейчас дом отапливается дровами, есть печка, но к забору дома подведена газовая точка, поэтому провести газ в дом и сделать проект будет не сложно. Вода колонка на улице. 12 соток земли, земля ухожена, есть кадастровый номер. Документы в порядке, всё узаконено. новый техпаспорт.

      Надіслати скаргу

      Закрити
      Поскаржитися на об'єкт «ул. Первомайская (г. Кременчуг)»
      Ваш коментар:(Необов'язково)
      Ваша скарга буде надіслана ріелтору, що розмістив об'єкт, а також адміністрації сайту АФНУ.
      Ваше ім'я:
      (Обов'язково)
      Ваш e-mail для відповіді:
      (Обов'язково)

      Коментарі