Вхід на сайт

Ел. пошта:
Пароль:

Реєстрація на сайті

Призвіще: Область:
Ім'я: Населений пункт:
    По батькові: Номер телефону:
    Ел. пошта: Компанія:
      Пароль: Посада:
      Повторіть пароль: Рік початку роботи:
      Фото:
      З правилами розміщення об'єктів погоджуюсь

      Забули пароль?

      Вкажіть ел. пошту — ми надішлемо Вам новий пароль для входу
      Ел. пошта:

      Проблема на сайті

      Закрити
      Ваш e-mail:
      (необов'язково)
      Розкажіть нам, що сталось

      bugaz.jpg

      CPM.gif

      Клочківська вул., 117 — Продається квартира в новобудові

      (г. Харьков, Дзержинский район)

      115000 $

      Загальна площа: 170 кв.м

      Жила площа: 66 кв.м

      Площа кухні: 30 кв.м

      Кімнат: 4

      Поверх: 16

      К-ть поверхів: 17

      Продам 4-кімнатну квартиру у житловому комплексі бізнес-класу "Павлівський квартал", вул. Клочківська, 117 біля метро Наукова.

      Код об'єкта SF-2-235-636

      Житловий комплекс бізнес-класу розташований у районі, наближеному до центру. Біля будинку зупинки транспорту, через дорогу – супермаркет Восторг. Поруч метро, ​​супермаркети Клас, Зріст, АТБ, будівельний супермаркет Будмен, фітнес-клуб YOD, школи, дитсадки.

      Забудовник "Житлобуд-2"

      Секція 4, здана.
      Продаж по переуступці.

      16-й та 17-й поверхи 17-поверхового монолітно-каркасного будинку.
      Стіни: газобетон, мінераловатний утеплювач, штукатурка.

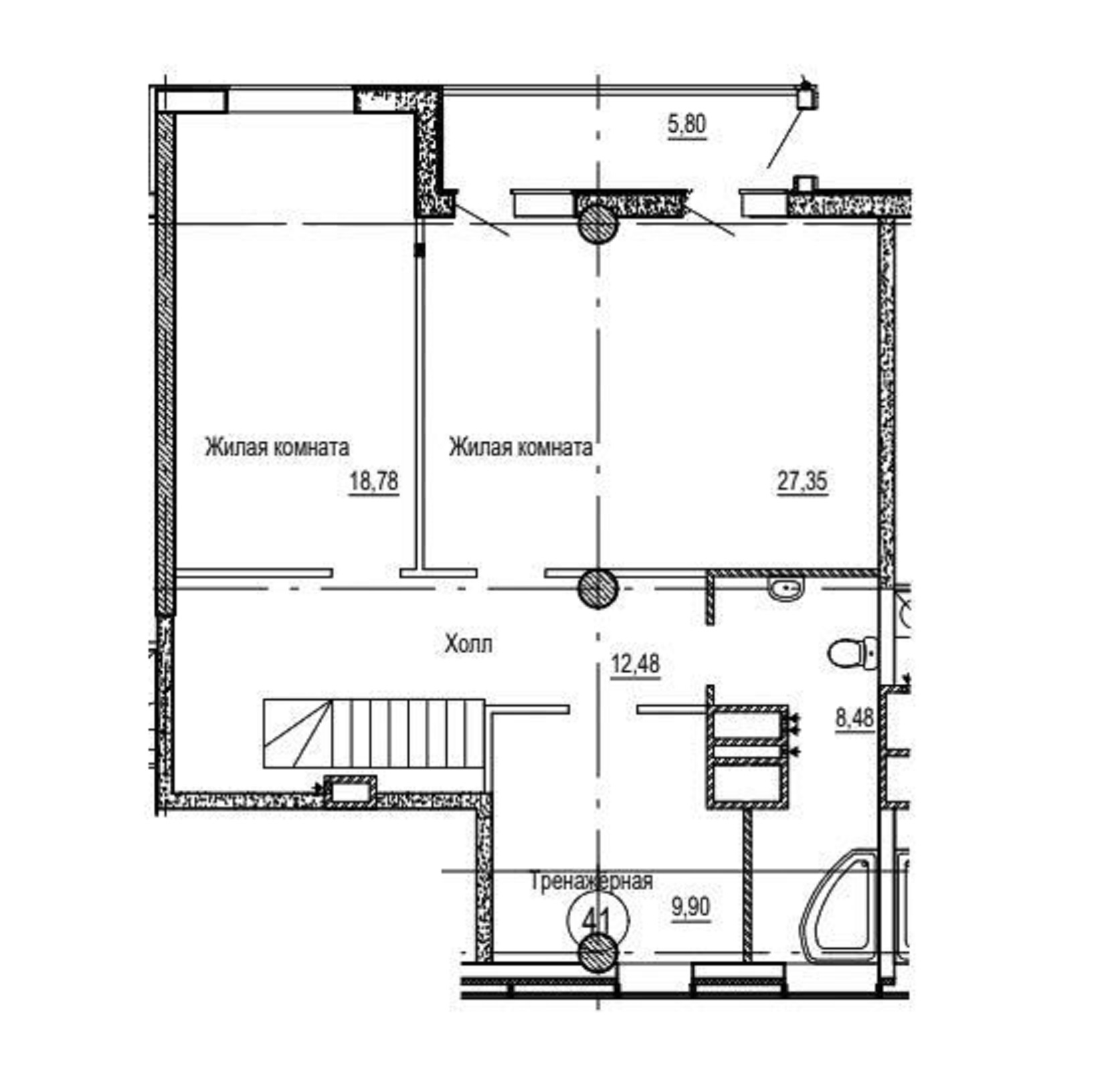
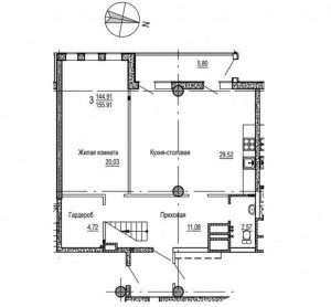
      Загальна площа 170 кв.м., житлова площа 66 кв.м.
      1-й рівень (16-й поверх): кухня-студія - 30 кв.м, спальня 20 кв.м, санвузол 3 кв.м, вбиральня - 5 кв.м, передпокій - 11 кв.м, лоджія - 6 кв. .м.
      2-й рівень (17-й поверх): дві спальні – 19 кв.м та 27 кв.м, санвузол 9 кв.м, тренажерна – 10 кв.м, хол – 12 кв.м, лоджія – 6 кв.м .

      Квартира у будiвельному станi.

      У під'їзді просторий хол, домофон, цілодобовий консьєрж-сервіс.
      Закритий двір, відеоспостереження, підземний дворівневий паркінг, наземне паркування, зони відпочинку, дитячі та спортивні майданчики.

      Вартість $115 тис + послуги АН

      Надіслати скаргу

      Закрити
      Поскаржитися на об'єкт «Клочківська вул., 117 (г. Харьков, Дзержинский район)»
      Ваш коментар:(Необов'язково)
      Ваша скарга буде надіслана ріелтору, що розмістив об'єкт, а також адміністрації сайту АФНУ.
      Ваше ім'я:
      (Обов'язково)
      Ваш e-mail для відповіді:
      (Обов'язково)

      Коментарі