Вхід на сайт

Ел. пошта:
Пароль:

Реєстрація на сайті

Призвіще: Область:
Ім'я: Населений пункт:
    По батькові: Номер телефону:
    Ел. пошта: Компанія:
      Пароль: Посада:
      Повторіть пароль: Рік початку роботи:
      Фото:
      З правилами розміщення об'єктів погоджуюсь

      Забули пароль?

      Вкажіть ел. пошту — ми надішлемо Вам новий пароль для входу
      Ел. пошта:

      Проблема на сайті

      Закрити
      Ваш e-mail:
      (необов'язково)
      Розкажіть нам, що сталось

      bugaz.jpg

      CPM.gif

      ул. Авиационная — Продається квартира в новобудові

      (г. Харьков, Дзержинский район)

      128500 $

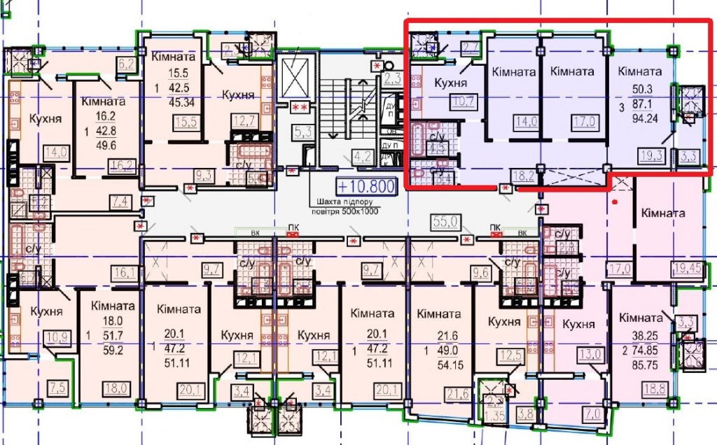
      Загальна площа: 94 кв.м

      Жила площа: 50 кв.м

      Площа кухні: 10 кв.м

      Кімнат: 3

      Поверх: 4

      К-ть поверхів: 9

      Продається 3-кімнатна квартира в ЖК Авіаційна.

      Квартира заходиться в будинку №1 секція 4.

      Здача будинку № 1 запланована на кінець 2021 року.

      Квартира повністью під ваш ремонт.

      Житловий комплекс "Авіаційна" розташований на вул. Авіаційній на Шатиловке в Харкові.

      Складається з двох багатоповерхових житлових будинків бізнес-класу.
      Будинок № 1 являє собою чотирьохсекційний монолітно-каркасний будинок змінної поверховості (9-13 поверхів) з підземним гаражем.

      У самому комплексі планується благоустрій території, а саме: обладнані дитячі майданчики, комфортні зони відпочинку і занять спортом, місце для парковки, а також виділена паркувальна зона для гостей на прибудинковій території і підземний паркінг.

      Надіслати скаргу

      Закрити
      Поскаржитися на об'єкт «ул. Авиационная (г. Харьков, Дзержинский район)»
      Ваш коментар:(Необов'язково)
      Ваша скарга буде надіслана ріелтору, що розмістив об'єкт, а також адміністрації сайту АФНУ.
      Ваше ім'я:
      (Обов'язково)
      Ваш e-mail для відповіді:
      (Обов'язково)

      Коментарі