Вхід на сайт

Ел. пошта:
Пароль:

Реєстрація на сайті

Призвіще: Область:
Ім'я: Населений пункт:
    По батькові: Номер телефону:
    Ел. пошта: Компанія:
      Пароль: Посада:
      Повторіть пароль: Рік початку роботи:
      Фото:
      З правилами розміщення об'єктів погоджуюсь

      Забули пароль?

      Вкажіть ел. пошту — ми надішлемо Вам новий пароль для входу
      Ел. пошта:

      Проблема на сайті

      Закрити
      Ваш e-mail:
      (необов'язково)
      Розкажіть нам, що сталось

      bugaz.jpg

      CPM.gif

      Освитянская, 6 — Продається заклад громадського харчування

      (г. Полтава, Октябрьский район)

      2000000 $

      Загальна площа: 1100 кв.м

      К-ть поверхів: 9

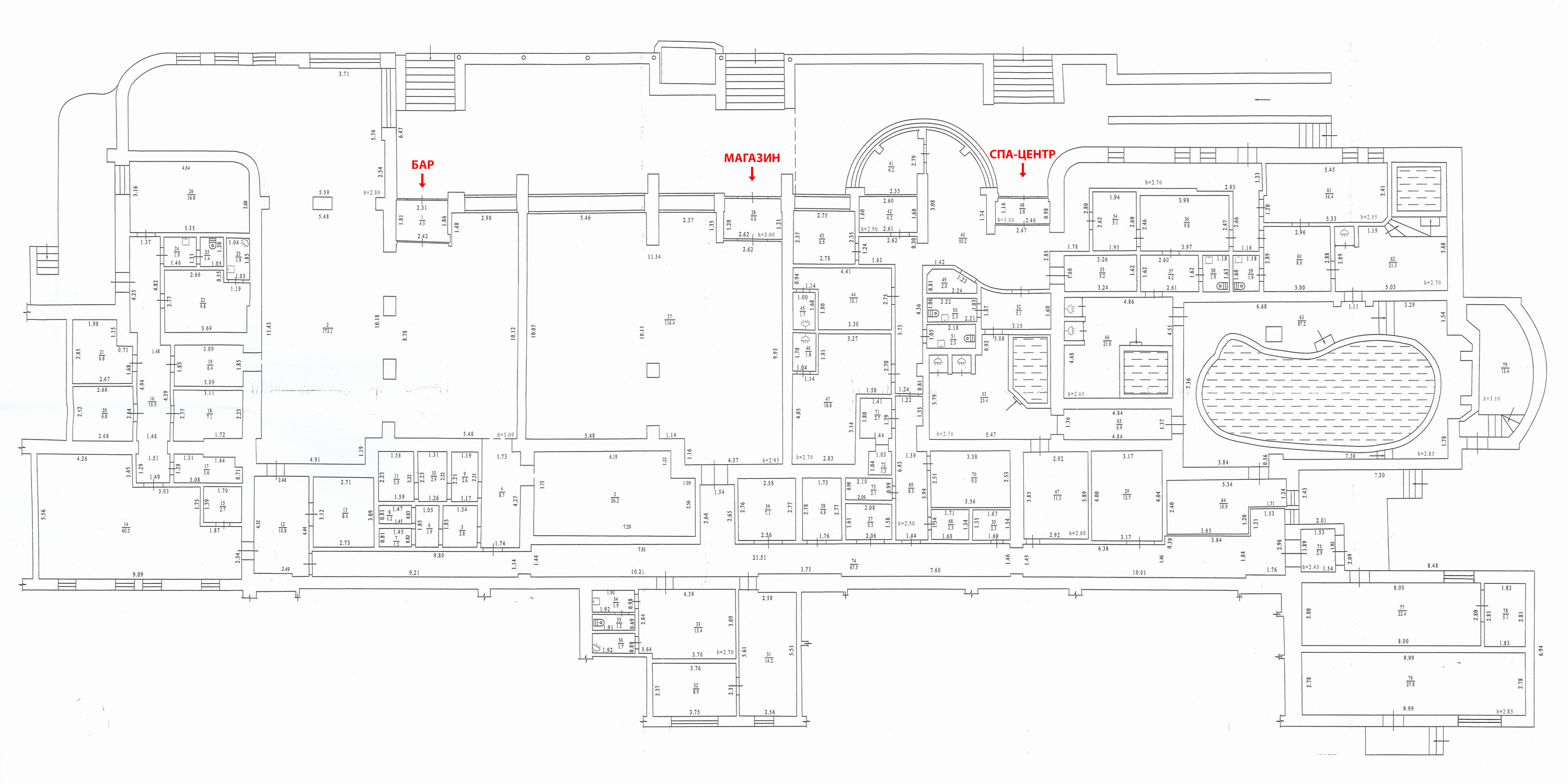
      Мы предлагаем приобрести по хорошей цене целый комплекс предприятий, которые могут работать как самостоятельные единицы, так и взаимовыгодно дополнять друг друга.
      Оздоровительный СПА комплекс в котором находятся 3 разных сауны, купели — все рассчитано на самого взыскательного клиента.
      Просторный бассейн с прекрасной лаунж — зоной для отдыха и расслабления.
      Массажные кабинеты со всем необходимым оборудованием.
      Также имеется просторный паб, который сохраняет потрясающую атмосферу и уют.
      Прекрасный VIP — зал для индивидуальных заказов — банкеты, совещания и встречи.
      Идеально подходит для презентаций, праздников, проведения юбилеев, Дней рождений и любых празднований.
      Летняя терраса с живыми цветами создает легкое игривое настроений, хорошо защищена от солнца, находится в тихой зоне города. Идеально для семейного отдыха и отличного времяпрепровождения.
      Рядом находится продуктовый магазин, который обслуживает жителей микрорайона.
      На каждый вид бизнеса — есть свой отдельный вход, что позволяет работать им автономно.
      Общая площадь 1100м2, своя генераторная — нет проблем с перебоями электроэнергии, необходимое напряжение в 380В для корректной работы СПА — комплекса и холодильного оборудования продуктового магазина.
      Также Вы сможете приобрести отдельное помещение для персонала. Или квартиру для себя для эффективного управления своим бизнес-проектом, которая находится в этом же здании
      Нужна ли реклама совершенству?
      Если совершенство — это Вы, то этот комплекс — для Вас.

      Надіслати скаргу

      Закрити
      Поскаржитися на об'єкт «Освитянская, 6 (г. Полтава, Октябрьский район)»
      Ваш коментар:(Необов'язково)
      Ваша скарга буде надіслана ріелтору, що розмістив об'єкт, а також адміністрації сайту АФНУ.
      Ваше ім'я:
      (Обов'язково)
      Ваш e-mail для відповіді:
      (Обов'язково)

      Коментарі