Вхід на сайт

Ел. пошта:
Пароль:

Реєстрація на сайті

Призвіще: Область:
Ім'я: Населений пункт:
    По батькові: Номер телефону:
    Ел. пошта: Компанія:
      Пароль: Посада:
      Повторіть пароль: Рік початку роботи:
      Фото:
      З правилами розміщення об'єктів погоджуюсь

      Забули пароль?

      Вкажіть ел. пошту — ми надішлемо Вам новий пароль для входу
      Ел. пошта:

      Проблема на сайті

      Закрити
      Ваш e-mail:
      (необов'язково)
      Розкажіть нам, що сталось

      bugaz.jpg

      CPM.gif

      центр — Продається будинок

      (г. Ужгород)

      120000 $

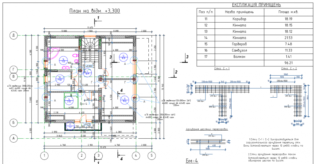
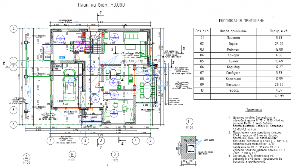
      Загальна площа: 223 кв.м

      Площа ділянки: 8 сот

      Кімнат: 5

      К-ть поверхів: 2

      Продам недостроенный дом в г. Ужгород, 10 минут езды от центра города. Индивидуальный европейский проект семейного типа. 8 соток земли, удобное месторасположение . Дом мансардного типа, общая площадь - 223 м2, жилая - 98 м2, 5 комнат, 2 сан.узла, гардероб, гараж, уютная летняя терраса, хоз. помещение, кладовая. Дом построен с качественных материалов согласно всех архитектурных норм. Монолитное перекрытие, крыша – натуральная черепица «Creoton». Коммуникации: свет, вода (скважина), газ рядом. Обмен на Киев.

      Надіслати скаргу

      Закрити
      Поскаржитися на об'єкт «центр (г. Ужгород)»
      Ваш коментар:(Необов'язково)
      Ваша скарга буде надіслана ріелтору, що розмістив об'єкт, а також адміністрації сайту АФНУ.
      Ваше ім'я:
      (Обов'язково)
      Ваш e-mail для відповіді:
      (Обов'язково)

      Коментарі