Вхід на сайт

Ел. пошта:
Пароль:

Реєстрація на сайті

Призвіще: Область:
Ім'я: Населений пункт:
    По батькові: Номер телефону:
    Ел. пошта: Компанія:
      Пароль: Посада:
      Повторіть пароль: Рік початку роботи:
      Фото:
      З правилами розміщення об'єктів погоджуюсь

      Забули пароль?

      Вкажіть ел. пошту — ми надішлемо Вам новий пароль для входу
      Ел. пошта:

      Проблема на сайті

      Закрити
      Ваш e-mail:
      (необов'язково)
      Розкажіть нам, що сталось

      bugaz.jpg

      CPM.gif

      без комісії ул. Нижнеключевая, 14 — Продається квартира в новобудові

      (г. Киев, Соломенский район)

      85500 $

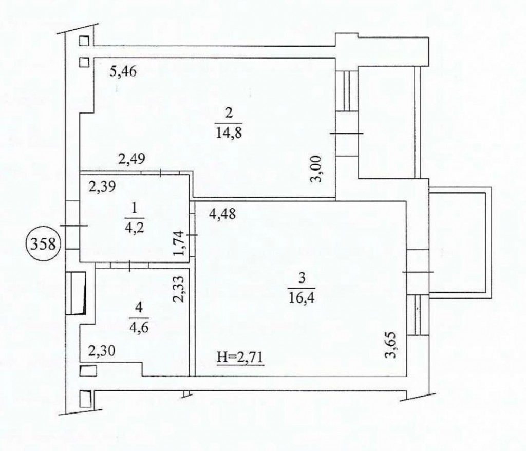
      Загальна площа: 43.7 кв.м

      Жила площа: 16.4 кв.м

      Площа кухні: 14.8 кв.м

      Кімнат: 1

      Поверх: 8

      К-ть поверхів: 25

      Без комісії! Пропонується на продаж сучасна і максимально комфортна однокімнатна квартира в ЖК Кампус по вул. Нижньоключова 14. Площа: 43.7 м2. Невисокий 8 поверх в 25 поверховій новобудові! В квартирі окрема велика кухня - вітальня з просторим заскленим балконом та окрема спальна кімната з «холодним балконом». В квартирі виконаний якісний ремонт та встановлені всі сучасні меблі та вся необхідна побутова техніка. Меблі та обладнання включають у себе вбудовану зручну кухню, двоспальне ліжко з матрацем, розкладний великий диван, дві шафи та обідній стіл з стільцями. У квартирі є кондиціонер, варильна панель, духовка, посудомийна та пральна машина, бойлер, холодильник та витяжка. Це ідеальний варіант для тих, хто цінує комфорт, безпеку та якісний ремонт. Поряд чудова інфраструктура: банки, аптеки, магазини, кавʼярні і т.д. В комплексі закрита охороняєма територія. Є гостьові паркомісця та підземний паркінг. Дитячі та спортивні майданчики у внутрішньому дворі. Також в будинку встановлено систему автономного енерго живлення: інвертори з акумуляторами та генератор. При відключеннях світла працює ліфт, є вода , опалення та інтернет. В будинку своя котельня. Є 2 укриття! Запрошуємо на перегляд і ви точно закохаєтесь в це житло. Це дійсно той варіант коли - заїхати і жити! Перегляди по попередній домовленості. З колегами співпрацюємо без дублювання реклами!

      Надіслати скаргу

      Закрити
      Поскаржитися на об'єкт «ул. Нижнеключевая, 14 (г. Киев, Соломенский район)»
      Ваш коментар:(Необов'язково)
      Ваша скарга буде надіслана ріелтору, що розмістив об'єкт, а також адміністрації сайту АФНУ.
      Ваше ім'я:
      (Обов'язково)
      Ваш e-mail для відповіді:
      (Обов'язково)

      Вам также могут подойти

      пр. Бажана Николая, 17 (г. Киев, Дарницкий район) - Продається квартира в новобудові, 89500 $ - АФНУ

      Оновлено: вчора

      Розміщено: 22 жовтня 2021

      Продається квартира в новобудові

      2 кімн., площа 72.47/54.34/6.16, поверх 21/26

      г. Киев, пр. Бажана Николая, 17

      89500 $ без комісії

      Дуб Антон Сергійович

      Без комісії! Продаж 2-кімн. квартири в 1 секції, в стильному новому ЖК Олімпік Парк. Комплекс комфорту класу! Всього в 200 метрах від метро Бориспільська та 5 хвилинах ходьби метро Вирлиця!…

      Детальніше

      пр. Бажана Николая, 17 (г. Киев, Дарницкий район) - Продається квартира в новобудові, 74999 $ - АФНУ

      Оновлено: вчора

      Розміщено: 22 жовтня 2021

      Продається квартира в новобудові

      2 кімн., площа 60/42.29/6.16, поверх 26/26

      г. Киев, пр. Бажана Николая, 17

      74999 $ без комісії

      Дуб Антон Сергійович

      Без комісії! Продаж 2-кімн.квартири в 2 секції, в стильному новому ЖК Олімпік Парк. Комплекс комфорту класу! Всього в 200 метрах від метро Бориспільська та 5 хвилинах ходьби метро Вирлиця! Будинок…

      Детальніше

      ул. Причальная, 11 (г. Киев, Дарницкий район) - Продається квартира, 92000 $ - АФНУ

      Оновлено: вчора

      Розміщено: 22 травня 2023

      Продається квартира

      2 кімн., площа 64/28/18, поверх 24/26

      г. Киев, ул. Причальная, 11

      92000 $ без комісії

      Дуб Антон Сергійович

      Без комісії! Я власник! Продається супер видова! 2-кімнатна квартира на 24 поверсі 26 поверхового будинку в ЖК Урловський 1 ( вул. Причальна,11 )
      Видовий перший будинок. Вид на Дніпро та…

      Детальніше

      Коментарі