Вхід на сайт

Ел. пошта:
Пароль:

Реєстрація на сайті

Призвіще: Область:
Ім'я: Населений пункт:
    По батькові: Номер телефону:
    Ел. пошта: Компанія:
      Пароль: Посада:
      Повторіть пароль: Рік початку роботи:
      Фото:
      З правилами розміщення об'єктів погоджуюсь

      Забули пароль?

      Вкажіть ел. пошту — ми надішлемо Вам новий пароль для входу
      Ел. пошта:

      Проблема на сайті

      Закрити
      Ваш e-mail:
      (необов'язково)
      Розкажіть нам, що сталось

      bugaz.jpg

      CPM.gif

      ул. Короленко — Продається квартира

      (г. Полтава, Октябрьский район)

      64000 $

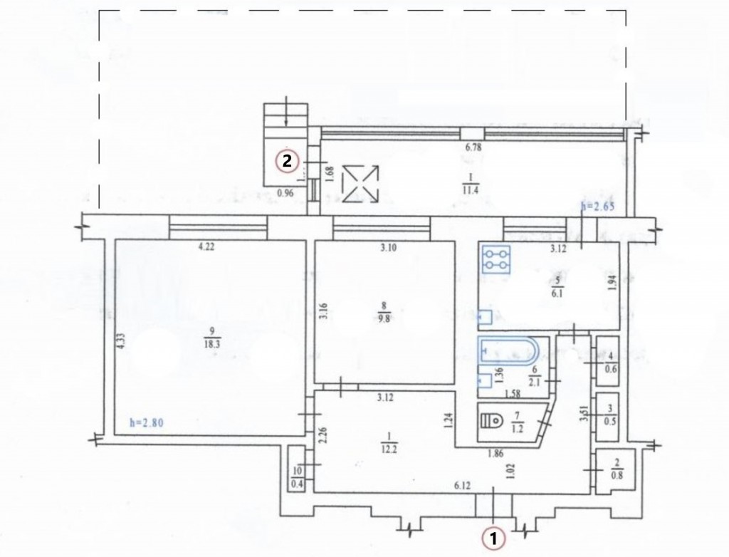
      Загальна площа: 63 кв.м

      Жила площа: 28 кв.м

      Площа кухні: 6 кв.м

      Кімнат: 2

      Поверх: 1

      К-ть поверхів: 3

      ПРОДАМ 2-КІМНАТНУ КВАРТИРУ ТИПУ ТАУНХАУС з додатковим приватним виходом у задній дворик (палісадник) у ЦЕНТРІ ПОЛТАВИ
      Розташування:
      вул. Короленка, поруч із Березовим сквером — комфортне та затишне місце для життя.
      Параметри:
      • Площа: 63,4 м²
      • 1-й поверх
      • Висота стелі: 2,8 м
      • Перекриття: з/б
      Планування:
      • Дві окремі кімнати: 18,3 м² + 9,8 м²
      • Хол / коридор: 12,2 м²
      • Балкон: 11,4 м² з підвалом / погребом
      • Гардеробна
      • 3 окремі кладовки
      Особливості:
      • Приватний вихід у задній дворик (палісадник) для відпочинку або садівництва
      • Формат проживання, наближений до таунхаусу
      • Зручне розташування поруч із центром міста
      Квартира поєднує комфорт, приватність та функціональне планування — ідеальний варіант для тих, хто хоче жити в центрі Полтави, але з відчуттям власного простору.

      Надіслати скаргу

      Закрити
      Поскаржитися на об'єкт «ул. Короленко (г. Полтава, Октябрьский район)»
      Ваш коментар:(Необов'язково)
      Ваша скарга буде надіслана ріелтору, що розмістив об'єкт, а також адміністрації сайту АФНУ.
      Ваше ім'я:
      (Обов'язково)
      Ваш e-mail для відповіді:
      (Обов'язково)

      Вам также могут подойти

      ул. Станиславского (г. Полтава, Октябрьский район) - Продається квартира, 55000 $ - АФНУ

      Оновлено: 24 вересня

      Розміщено: 5 квітня 2024

      Продається квартира

      2 кімн., площа 48.6/13.6/22.1, поверх 1/9

      г. Полтава, ул. Станиславского

      55000 $

      Остапченко Александр Степанович

      соучредитель (Агентство недвижимости "Альянс риэлти" Полтава)

      Продам 2 кімнатну квартиру (апартаменти з однією спальнею) у Полтаві, на м-ні Сади-3, по вул. Станіславського в новому цегляному будинку з 5-річним ремонтом, встановлено лічильник на систему опалення, гарячого та…

      Детальніше

      ул. Чорновола (г. Полтава, Октябрьский район) - Продається квартира, 75000 $ - АФНУ

      Оновлено: 25 листопада

      Розміщено: 18 липня

      Продається квартира

      2 кімн., площа 48.2/27.3/7.7, поверх 4/9

      г. Полтава, ул. Чорновола

      75000 $

      Остапченко Александр Степанович

      соучредитель (Агентство недвижимости "Альянс риэлти" Полтава)

      Продаж 2 кімнатної квартири (апартаменти з однією спальнею) в будинку бізнес класу, в Центрі Полтави, р-н вул. Чорновола, поряд з гімназією №6
      Характеристика квартири:
      - загальна площа – 48,20 кв.м;…

      Детальніше

      ул. Чорновола (г. Полтава, Октябрьский район) - Продається квартира, 75000 $ - АФНУ

      Оновлено: 14 листопада

      Розміщено: 22 липня

      Продається квартира

      2 кімн., площа 48.2/27.3/7.7, поверх 4/9

      г. Полтава, ул. Чорновола

      75000 $

      Остапченко Александр Степанович

      соучредитель (Агентство недвижимости "Альянс риэлти" Полтава)

      Продаж 2 кімнатної квартири (апартаменти з однією спальнею) в будинку бізнес класу, в Центрі Полтави, р-н вул. Чорновола, поряд з гімназією 6
      Характеристика квартири:
      - загальна площа 48, 20 кв.м;…

      Детальніше

      Коментарі