Вхід на сайт

Ел. пошта:
Пароль:

Реєстрація на сайті

Призвіще: Область:
Ім'я: Населений пункт:
    По батькові: Номер телефону:
    Ел. пошта: Компанія:
      Пароль: Посада:
      Повторіть пароль: Рік початку роботи:
      Фото:
      З правилами розміщення об'єктів погоджуюсь

      Забули пароль?

      Вкажіть ел. пошту — ми надішлемо Вам новий пароль для входу
      Ел. пошта:

      Проблема на сайті

      Закрити
      Ваш e-mail:
      (необов'язково)
      Розкажіть нам, що сталось

      bugaz.jpg

      CPM.gif

      Кишинівська — Продається будинок

      (г. Кривой Рог, Долгинцевский район)

      12000 $

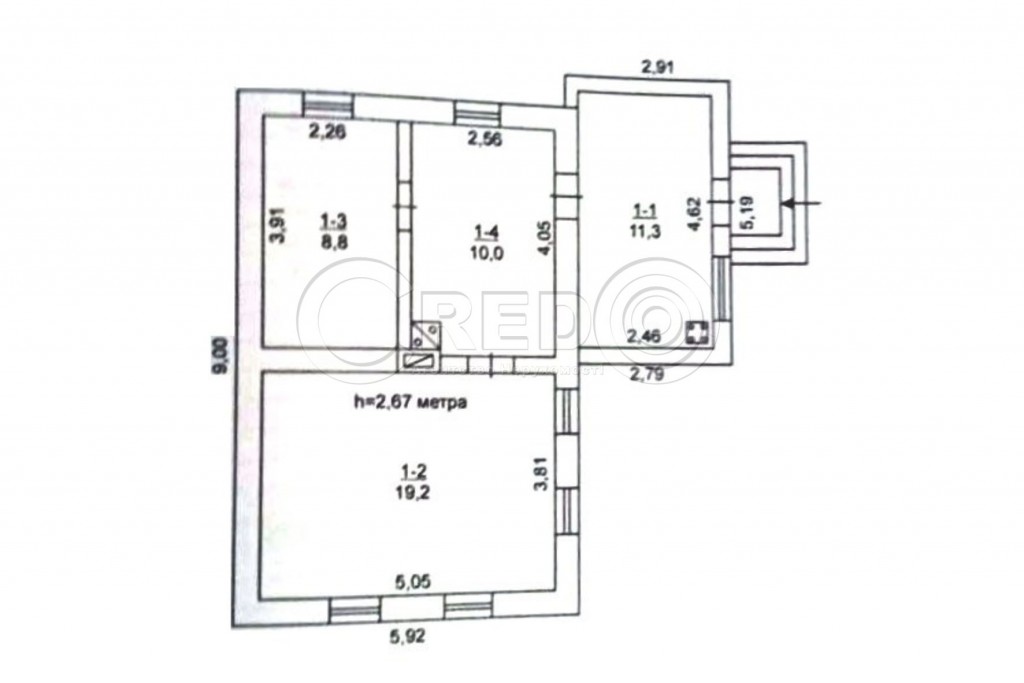
      Загальна площа: 49 кв.м

      Площа ділянки: 6 сот

      Кімнат: 3

      К-ть поверхів: 1

      Пропонуємо до продажу, а також розглянемо обмін на квартиру
      будинок у Довгинцівському районі, селище Залізничне, вул.Кишинівська.

      Пр об'єкт:
      - шлаколитий будинок.
      - загальна площа 49,3 м.кв.
      - житлова площа 28.0 м.кв.
      - кімнати 19,2 + 10 + 8,8 м.кв.
      - висота стелі 2,70 м.

      Комунікації та особливості об'єкту:
      - будинок без сучасного ремонту.
      - кімнати у житловому стані.
      - кухня та санвузол потребують реконструкції.
      - в будинок заведено водопровід та газ.
      - опалення - газовий котел.
      - збережена дров'яна піч.
      - літня кухня також газифікована та з водою.
      - каналізація - септик.
      - на території міцні господарчі споруди.
      - також є гарний, сухий погріб.
      - земельна ділянка 6 сот.
      - розташування - друга лінія вулиці Кишинівська
      з власним заїздом.

      Локація:
      - селище "Залізничне" розташовано в чистій, екологічній
      зоні Довгинцівського району.
      - не далеко від зупинки громадського транспорту "Будка".
      - поряд не велика продуктова крамниця.
      - в шаговому доступі Загальноосвітня школа № 89.

      Пропозиції обміну на квартиру розглянемо різні, у межах
      нашої продажної ціни.
      На сьогодні ціна 12 000$

      За будь-якими питаннями за цією або схожими пропозиціями звертайтесь за номером телефону 067 982 17 19.
      З повагою, команда Credo!

      Надіслати скаргу

      Закрити
      Поскаржитися на об'єкт «Кишинівська (г. Кривой Рог, Долгинцевский район)»
      Ваш коментар:(Необов'язково)
      Ваша скарга буде надіслана ріелтору, що розмістив об'єкт, а також адміністрації сайту АФНУ.
      Ваше ім'я:
      (Обов'язково)
      Ваш e-mail для відповіді:
      (Обов'язково)

      Коментарі