Вхід на сайт

Ел. пошта:
Пароль:

Реєстрація на сайті

Призвіще: Область:
Ім'я: Населений пункт:
    По батькові: Номер телефону:
    Ел. пошта: Компанія:
      Пароль: Посада:
      Повторіть пароль: Рік початку роботи:
      Фото:
      З правилами розміщення об'єктів погоджуюсь

      Забули пароль?

      Вкажіть ел. пошту — ми надішлемо Вам новий пароль для входу
      Ел. пошта:

      Проблема на сайті

      Закрити
      Ваш e-mail:
      (необов'язково)
      Розкажіть нам, що сталось

      bugaz.jpg

      CPM.gif

      вул. Віталія Матусевича, 21 — Продається квартира

      (г. Кривой Рог, Дзержинский район)

      13000 $

      Загальна площа: 56 кв.м

      Жила площа: 41 кв.м

      Площа кухні: 6 кв.м

      Кімнат: 3

      Поверх: 1

      К-ть поверхів: 5

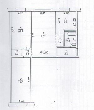
      3х кімнатна квартира 1йповерх 5ти поверхового панельного будинку по вул.В.Матусевича, Металургійний район, м. Кривий Ріг, Дніпропетровської області.
      Загальна площа квартири-56. 9кв.м, житлова-41. 4кв.м (17.1/ 13.4\ 10.9), Н-2.50м, кухня-5. 6кв.м, коридор-5. 8кв.м, санвузол суміщений- 2. 8кв.м, комора-1.3кв.м. Квартира двох стороння, не кутова, кімнати одна прохідна, дві роздільні, в задовільному стані, потрібен ремонт, вікна мп, труби-мп, окрім кухні всі нові батареї, підвал сухий без запахів, цоколь не високий. Квартира знаходиться в районі з добре розвиненою інфраструктурою: магазини, зупинки, парк, ринок, цирк, інститут.
      Ціна: 13000у.о.
      Олег:097-984-76-24

      Надіслати скаргу

      Закрити
      Поскаржитися на об'єкт «вул. Віталія Матусевича, 21 (г. Кривой Рог, Дзержинский район)»
      Ваш коментар:(Необов'язково)
      Ваша скарга буде надіслана ріелтору, що розмістив об'єкт, а також адміністрації сайту АФНУ.
      Ваше ім'я:
      (Обов'язково)
      Ваш e-mail для відповіді:
      (Обов'язково)

      Вам также могут подойти

      ул. Хабаровская, 11 (г. Кривой Рог, Дзержинский район) - Продається квартира, 15300 $ - АФНУ

      Оновлено: 15 грудня

      Розміщено: 3 жовтня

      Продається квартира

      2 кімн., площа 43/37/5, поверх 1/3

      г. Кривой Рог, ул. Хабаровская, 11

      15300 $

      Костышин Дмитрий Александрович

      Исполнительный директор (Риэлтерская компания "Бюро недвижимости "СПЕКТР")

      Пропонується у продаж 2 кімнатна квартира вул. Хабаровська, 11 зуп. " Басейн" "сталінка", на 1 поверсі 3х поверхового будинку , заг. пл 43,3 кв.м., житл. 37,1 кухня 5,9 висота 3…

      Детальніше

      ул. Буденного, 9 (г. Кривой Рог, Дзержинский район) - Продається квартира, 14300 $ - АФНУ

      Оновлено: 15 грудня

      Розміщено: 1 грудня

      Продається квартира

      3 кімн., площа 57/41/6, поверх 5/5

      г. Кривой Рог, ул. Буденного, 9

      14300 $

      Костышин Дмитрий Александрович

      Исполнительный директор (Риэлтерская компания "Бюро недвижимости "СПЕКТР")

      3-кімнатна квартира 5й поверх 5ти поверхового панельного будинку по вул. Ал.Васякіна (Буденного), Металургійний район, м. Кривий Ріг, Дніпропетровської області. Загальна площа квартири-57. 4 кв.м, житлова-44. 3кв.м(19.7/13.6\11.0), Н-2.53м, кухня-5. 6кв.м, коридор-2.7кв.м,…

      Детальніше

      вул. Едуарда Фукса, 21 (г. Кривой Рог, Жовтневый район) - Продається квартира, 13500 $ - АФНУ

      Оновлено: 15 грудня

      Розміщено: 25 листопада 2024

      Продається квартира

      2 кімн., площа 43/27/7, поверх 4/5

      г. Кривой Рог, вул. Едуарда Фукса, 21

      13500 $

      Костышин Дмитрий Александрович

      Исполнительный директор (Риэлтерская компания "Бюро недвижимости "СПЕКТР")

      Продаж 2 кім . квартири вул. Едуарда Фукса буд.21, р-н Автотехнікум, 4/5 поверх., загальна площа 43,6 квм., житлова 27,9 кв.м., кухня 7,4 кв.м., кімната прохідна, сан. вузол сумісний – кахель,…

      Детальніше

      Коментарі